처음 써보는 오토캐드 학습일기.
학교에서 할 때에는 동적입력이나 추적 기능 관련해서 좀 문제점이 있었는데 집에서 하는 지금은 별다른 문제가 보이지 않아 현재의 상태도구막대를 찍어놓은 것이다.

1.
동적입력은 자동적으로 내가 가지고 가려는 커서를 주변의 그리드나 좌표로 가져가려고 하는 기능이다.
근데 아직은 무엇을 위한 기능인지 모르겠다...
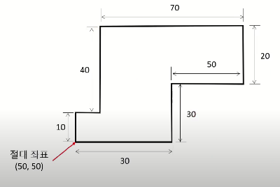
2.
Line, 상대 좌표를 사용해 이걸 그려봤다.

실습 예제 이미지는 아래와 같다.

명령 창에 Line 입력 후
0,0 (절대 좌표)
@30,0 (상대좌표)
.
.
.
@0-10(상대 좌표)
이렇게 해줬다.
3.

여기 명령창이 아니라 아래와 같이 좌표 근처의 팝업에 작성되기도 한다.

4.
다 만들어지면 C를 누르면 된다.
5.
Line, 상대좌표를 사용해 이것도 그려봤다.

실습예제사진은 아래와 같다.

6. 상대 극 좌표를 사용해 도형을 그리는 방법(Line)
@ r < (동경 각도)
(여기서 공백과 ()은 실제로는 입력하지 않는다.)
데카르트 좌표계(가장 일반적인 평면좌표계, 고등학교때까지 배운 그 좌표계)의 ,(콤마) 대신 <(오른쪽으로 입벌린 부등호)를 입력한다고 보면 된다.
**만약 ,(콤마)를 입력하고 <을 입력하면

이렇게 <이 보이고 빨간색 테두리라인이 뜨며 오류를 표시한다.
그럼 이때는 어떻게 해야할까?
[shift] + [Tab] 을 누르면 된다.
그러면

이렇게 앞에 입력한 것으로 돌아갈 수 있게 된다.
#상대 극 좌표를 사용해 정삼각형을 그려봤다.

50을 입력하고 <을 누르면 120을 입력하기 위한 창에 <은 안 뜬다.
그래도 당황하지 않고 120을 입력하면 된다.
완성된 모습은

실습 예제 사진은 아래와 같다.

#상대 극 좌표를 이용해 정팔각형도 그려봤다.
명령: LINE
첫 번째 점 지정: 0,0
다음 점 지정 또는 [명령 취소(U)]: @300<0
다음 점 지정 또는 [명령 취소(U)]: @300<45
다음 점 지정 또는 [닫기(C)/명령취소(U)]: @300<90
다음 점 지정 또는 [닫기(C)/명령취소(U)]: @300<135
다음 점 지정 또는 [닫기(C)/명령취소(U)]: @300<180
다음 점 지정 또는 [닫기(C)/명령취소(U)]: @300,-135
다음 점 지정 또는 [닫기(C)/명령취소(U)]: _u
다음 점 지정 또는 [닫기(C)/명령취소(U)]: @300<-135
다음 점 지정 또는 [닫기(C)/명령취소(U)]: @300<-90
다음 점 지정 또는 [닫기(C)/명령취소(U)]: @300<-45
다음 점 지정 또는 [닫기(C)/명령취소(U)]: c
완성된 모습은 다음과 같다.

실습 예제 사진은 다음과 같다.

7.
접선은 영어로 Tangent Line.
중고등학생때 배운 탄젠트가 이 탄젠트였다니!!
8. 원그리기(지름, 반지름)
명령어는 circle이다.
- 반지름을 입력해 원을 그리려면 중심점 지정하고 바로 반지름 입력하면 된다.
1번 원은 반지름이 500인 원이다.
명령: CIRCLE
원에 대한 중심점 지정 또는 [3점(3P)/2점(2P)/Ttr - 접선 접선 반지름(T)]: 0,0
원의 반지름 지정 또는 [지름(D)]: 500
( : 이후의 값이 입력한 값이다. 줄 바꿈이 될 때 Enter을 누른 것이다)
- 지름을 입력해 원을 그리려면 중심점을 지정하고, D를 입력하고 enter을 누른뒤, 지름을 입력하면 된다.
2번 원은 지름이 500인 원이다.
명령: CIRCLE
원에 대한 중심점 지정 또는 [3점(3P)/2점(2P)/Ttr - 접선 접선 반지름(T)]: 0,0
원의 반지름 지정 또는 [지름(D)] <500.0000>: D
원의 지름을 지정함 <1000.0000>: 500
완성된 모습은 다음과 같다.

9. 원 그리기(세점 연결/두점 연결/접선,접선, 반지름 이용)
- 두점을 연결하여 원을 그리려면 2p를 입력하고 지름의 양 끝점이 되는 첫번째 점, 두번째 점을 입력해줘야 한다.
여기서 포인트는 지름의 양 끝점이다.
명령: CIRCLE
원에 대한 중심점 지정 또는 [3점(3P)/2점(2P)/Ttr - 접선 접선 반지름(T)]: 2p
원 지름의 첫 번째 끝점 지정: 100,0
원 지름의 두 번째 끝점을 지정: @100,100
완성된 모습은 다음과 같다.

- 3 점을 연결하여 원을 그리려면 3p를 입력하고 첫번째 점, 두번째 점, 세번째 점을 입력해줘야 한다.
명령: CIRCLE
원에 대한 중심점 지정 또는 [3점(3P)/2점(2P)/Ttr - 접선 접선 반지름(T)]: 3p
원 위의 첫 번째 점 지정: 0,100
원 위의 두 번째 점 지정: @50,150
원 위의 세 번째 점 지정: @100,100
완성된 모습은 다음과 같다.

**참고로 세 점을 지나는 원의 방정식은 유일하게 결정된다.
- 접선, 접선, 반지름으로 원 그리기:
#정삼각형의 두 변에 접하는 원 그려보기
명령: LINE
첫 번째 점 지정: 50,50
다음 점 지정 또는 [명령 취소(U)]: @50<0
다음 점 지정 또는 [명령 취소(U)]: @50<120
다음 점 지정 또는 [닫기(C)/명령취소(U)]: @50<240
다음 점 지정 또는 [닫기(C)/명령취소(U)]: c
(50.0000, 50.0000, 0.0000)에서 길이가 0인 선이 작성됨
명령: CIRCLE
원에 대한 중심점 지정 또는 [3점(3P)/2점(2P)/Ttr - 접선 접선 반지름(T)]: Ttr
원의 첫 번째 접점에 대한 객체위의 점 지정:
원의 두 번째 접점에 대한 객체위의 점 지정:
원의 반지름 지정 <70.7107>: 25
완성된 모습은 다음과 같다.

#한 변의 길이가 50인 정삼각형을 그리고
이 정삼각형의 두 변을 접선으로 갖는 원들 그리기.
반지름은 0~25(자연수)인 원들.

중간중간 빠진 원들도 있는 것 같긴 하다.. 점을 잘못지정했는지 어쨌는지...
그래도 그리다보니 뭔가 예뻐서 계속 그려봤다.
@정삼각형의 두변에 접하는 원 3개 그리기

10. 원 그리기(접선접선접선)
세 접선을 지정해 원 그리기를 편의상 TTT라 하겠다.
이건 딱히 명령어가 없는 듯하다.
그래서

리본메뉴 > 홈 > 원 > 접선, 접선, 접선
의 경로로 들어가야 한다.
그리고 접선위의 세 접점을 선택해주면 된다.
#정삼각형의 세 변에 접하는 원 그리기
완성된 사진은 다음과 같다.

11. 직사각형 그리기
명령어로 rectang
OR
리본메뉴 > 홈> 그리기> 직사각형

ⓐ 두 구석점 지정
두번째 구석점은 첫번째 구석점으로부터 대각선에 있는 구석점으로 지정한다.
명령: RECTANG
첫 번째 구석점 지정 또는 [모따기(C)/고도(E)/모깎기(F)/두께(T)/폭(W)]: 10,10
다른 구석점 지정 또는 [영역(A)/치수(D)/회전(R)]: @100,100

ⓑ 모따기 : 모서리를 모따기한 사각형을 그림.(Chamfer)
c 입력 > 첫번째 모따기 거리 지정(y축)> 두번째 모따기 거리 지정(x축) > 첫번째 구석점 지정 > 두번째 구석점 지정
(모따기 전 직사각형의 왼쪽 아래 점 기준)
**첫번째 모따기 거리 지정은 세로 방향의 길이이고, 두번재 모따기 거리 지정은 가로 방향의 길이이다.
(모따기 전 직사각형의 왼쪽 아래 점 기준)
**모따기는 기계 가공, 목공, 가구, 콘크리트 거푸집 공사, 거울에 자주 사용되며 많은 기계 공학 설계의 조립을 용이하게 한다.
#첫번째 실습
명령: RECTANG
첫 번째 구석점 지정 또는 [모따기(C)/고도(E)/모깎기(F)/두께(T)/폭(W)]: c
직사각형의 첫 번째 모따기 거리 지정 <0.0000>: 30
직사각형의 두 번째 모따기 거리 지정 <30.0000>: 30
첫 번째 구석점 지정 또는 [모따기(C)/고도(E)/모깎기(F)/두께(T)/폭(W)]: 10,10
다른 구석점 지정 또는 [영역(A)/치수(D)/회전(R)]: @100,100

#두번째 실습
명령: RECTANG
현재 직사각형 모드: 모따기=50.0000 x 100.0000
첫 번째 구석점 지정 또는 [모따기(C)/고도(E)/모깎기(F)/두께(T)/폭(W)]: c
직사각형의 첫 번째 모따기 거리 지정 <50.0000>: 20
직사각형의 두 번째 모따기 거리 지정 <100.0000>: 60
첫 번째 구석점 지정 또는 [모따기(C)/고도(E)/모깎기(F)/두께(T)/폭(W)]: 10,10
다른 구석점 지정 또는 [영역(A)/치수(D)/회전(R)]: @100,100

#세번째 실습
명령: RECTANG
현재 직사각형 모드: 모따기=20.0000 x 60.0000
첫 번째 구석점 지정 또는 [모따기(C)/고도(E)/모깎기(F)/두께(T)/폭(W)]: c
직사각형의 첫 번째 모따기 거리 지정 <20.0000>: 15
직사각형의 두 번째 모따기 거리 지정 <60.0000>: 25
첫 번째 구석점 지정 또는 [모따기(C)/고도(E)/모깎기(F)/두께(T)/폭(W)]: 10,10
다른 구석점 지정 또는 [영역(A)/치수(D)/회전(R)]: @100,100

실습 예제 사진은 다음과 같다.

ⓒ모깎기: 모서리를 모깎기한 사각형을 그린다.(Fillet)
모서리를 둥글둥글하게 만들어줌.
f 입력 > 직사각형 모깎기 반지름 입력 > 첫번째 구석점 지정 > 두번째 구석점 지정
명령: RECTANG
현재 직사각형 모드: 모따기=15.0000 x 25.0000
첫 번째 구석점 지정 또는 [모따기(C)/고도(E)/모깎기(F)/두께(T)/폭(W)]: f
직사각형의 모깎기 반지름 지정 <15.0000>: 15
첫 번째 구석점 지정 또는 [모따기(C)/고도(E)/모깎기(F)/두께(T)/폭(W)]: 10,10
다른 구석점 지정 또는 [영역(A)/치수(D)/회전(R)]: @100,100

ⓓ폭(w): 직사각형의 선 두께를 지정한다.(width)
w 입력 > 직사각형 선 폭(두께) 지정 > 일반적인 직사각형을 그리는 방법 수행(a,b,c 방법들)
#첫번째 실습
직사각형의 선 두께를 지정하고 모깎기하기
명령: RECTANG
현재 직사각형 모드: 모깎기=15.0000 폭=5.0000
첫 번째 구석점 지정 또는 [모따기(C)/고도(E)/모깎기(F)/두께(T)/폭(W)]: w
직사각형의 선 폭 지정 <5.0000>: 5
첫 번째 구석점 지정 또는 [모따기(C)/고도(E)/모깎기(F)/두께(T)/폭(W)]: f
직사각형의 모깎기 반지름 지정 <15.0000>: 10
첫 번째 구석점 지정 또는 [모따기(C)/고도(E)/모깎기(F)/두께(T)/폭(W)]: 10,10
다른 구석점 지정 또는 [영역(A)/치수(D)/회전(R)]: @100,100

ⓔ 영역(A) : 입력한 면적을 가진 사각형을 그린다.
length,width
첫번째 구석점 지정 > a 입력 > 직사각형 영역(면적) 입력 > 길이(가로)를 입력할 거면 L 입력, 폭(세로)를 입력하려면 W입력 > 길이(L 선택시) 혹은 폭(W 선택시) 입력
명령: RECTANG
현재 직사각형 모드: 폭=1.0000
첫 번째 구석점 지정 또는 [모따기(C)/고도(E)/모깎기(F)/두께(T)/폭(W)]: w
직사각형의 선 폭 지정 <1.0000>: 0
첫 번째 구석점 지정 또는 [모따기(C)/고도(E)/모깎기(F)/두께(T)/폭(W)]: 50,50
다른 구석점 지정 또는 [영역(A)/치수(D)/회전(R)]: a
현재 단위에 직사각형 영역 입력 <10000.0000>: 10000
[길이(L)/폭(W)] <길이>를 기준으로 직사각형 치수 계산: l
직사각형 길이 입력 <150.0000>: 150

ⓕ 치수(d) : 길이와 폭을 입력하여 사각형을 그린다.(dimensions)
첫번재 구석점 지정 > d 입력 > 직사각형 길이 지정(x축, 가로) > 직사각형 폭 지정(y축, 세로) > 커서로 방향 지정하여 클릭
명령: RECTANGLE
첫 번째 구석점 지정 또는 [모따기(C)/고도(E)/모깎기(F)/두께(T)/폭(W)]: 50,50
다른 구석점 지정 또는 [영역(A)/치수(D)/회전(R)]: d
직사각형의 길이 지정 <150.0000>:
직사각형의 폭 지정 <66.6667>: 100
다른 구석점 지정 또는 [영역(A)/치수(D)/회전(R)]:

ⓖ 회전(R) : 지정한 각도로 회전된 직사각형을 그린다.
첫번째 구석점 지정 > r 입력 > 회전 각도 지정 > 커서로 위치 지정하여 클릭
명령: RECTANG
첫 번째 구석점 지정 또는 [모따기(C)/고도(E)/모깎기(F)/두께(T)/폭(W)]: 50,50
다른 구석점 지정 또는 [영역(A)/치수(D)/회전(R)]: r
회전 각도 지정 또는 [선택점(P)] <0>: 45
다른 구석점 지정 또는 [영역(A)/치수(D)/회전(R)]:

12. 호 그리기(ARC)
명령어 ARC
그러나 호는 명령어보다 리본 메뉴나 메뉴 막대를 이용하는 것이 더 편리함

ⓐ 세점을 지정하여 세점을 연결하는 호 그리기
명령: _arc
호의 시작점 지정 또는 [중심(C)]: 50,50
호의 두 번째 점 또는 [중심(C)/끝(E)] 지정: @50,50
호의 끝점 지정: @50,0

**너무 극단적인 형태여서 에러가 뜨며 안 그려지는 경우도 있음
ⓑ 시작점, 중심점, 끝점: 시작점, 중심점, 끝점을 순서대로 입력하여 호를 그림.
명령: ARC
호의 시작점 지정 또는 [중심(C)]: 100,50
호의 두 번째 점 또는 [중심(C)/끝(E)] 지정: c
호의 중심점 지정: 50,50
호의 끝점 지정(Ctrl 키를 누른 상태에서 방향 전환) 또는 [각도(A)/현의 길이(L)]: @-50,0

근데 여기서 이상했던 점은 중심점을 지정할 때 @를 입력하지 않았는데도 @가 입력된 채로 명령창에 들어간다는 것이다. 이 문제는 명령창에 직접 입력하면 해결된다.
13.
한번 직사각형의 모깍기 반지름(f), 선 폭(w),치수(d)이 지정되었으면 그것이 계속 이어진다.
초기화 하고 싶으면 각각의 값들을 0으로 바꿔주면 된다.
명령: RECTANG
현재 직사각형 모드: 폭=1.0000
첫 번째 구석점 지정 또는 [모따기(C)/고도(E)/모깎기(F)/두께(T)/폭(W)]: w
직사각형의 선 폭 지정 <1.0000>: 0
첫 번째 구석점 지정 또는 [모따기(C)/고도(E)/모깎기(F)/두께(T)/폭(W)]: 50,50
다른 구석점 지정 또는 [영역(A)/치수(D)/회전(R)]: a
현재 단위에 직사각형 영역 입력 <10000.0000>: 10000
[길이(L)/폭(W)] <길이>를 기준으로 직사각형 치수 계산: l
직사각형 길이 입력 <150.0000>: 150
이렇게 명령어 창을 보면 "현제 직사각형 모드:" 뒤에 써져 있는 것들이 디폹트값이 아닌 사용자가 변경한 값이다.
14.
명령어창이 없어졌다면 [Ctrl] + [9] 누르면 됨.
[출처]
https://darkpgmr.tistory.com/60
세 점을 지나는 원의 방정식 - 선형대수를 이용한 방법
세 점을 지나는 원의 방정식은 어떻게 될까? 지난 번 포스팅한 최소자승법의 이해와 다양한 활용예 (Least Square Method)에서 원의 방정식을 근사시키는 예제를 적다가 생각났던 내용이다. 세 점을
darkpgmr.tistory.com
+
숙명여자대학교 윤창규 교수님 수업자료
'AutoCAD' 카테고리의 다른 글
| [AutoCAD] 220326 학습일기 (0) | 2022.03.26 |
|---|---|
| [AutoCAD] 220323 학습일기 (0) | 2022.03.23 |
| [AutoCAD] 220321 학습일기 (0) | 2022.03.21 |
| [AutoCAD] 220320 학습일기 (0) | 2022.03.21 |
| [AutoCAD] 220314 학습일기 (0) | 2022.03.17 |